Huller and Cheese

< Return to Apartments list

The Cheese Factory : Fifth FLOOR PENTHOUSE


PENTHOUSE 46 - Type : Two bedroom penthouse with terrace

FLOOR PLANS

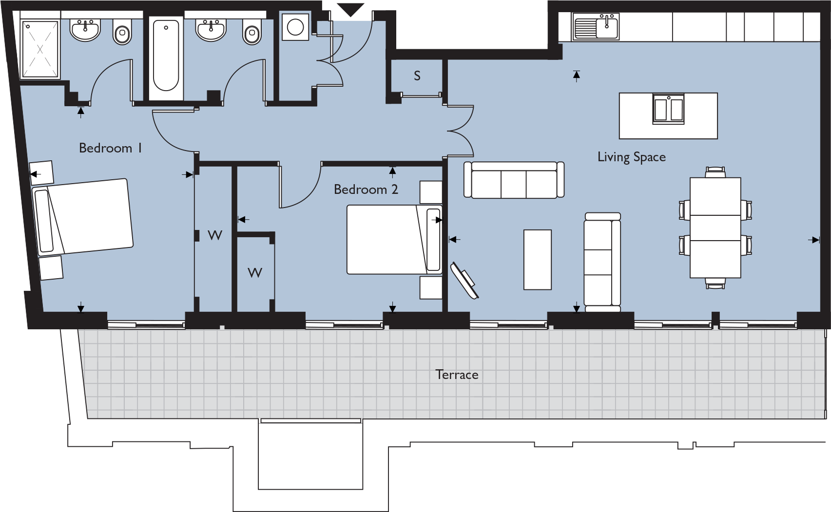
Apartment 46

PLOT LOCATIONS

ELEVATION


Apartment 46

SITEPLAN


Apartment 46

DIMENSIONS


Living Space

6.07m × 7.44m
19’ 11” × 24’ 5”

Bedroom 1

4.16m × 3.29m
13’ 7” × 10’ 10”

Bedroom 2

2.96m × 4.09m
9'8” × 13’ 5”

Total Size

93.22 m2
1003 sq.ft.

dimensions
 Room dimensions taken from this point
boiler
 Boiler Cupboard

S
 Store / Washer/dryer
W
 Wardrobe

iron
 Cast iron columns
concrete
 Concrete columns

These preliminary plans are intended only as a guide and may have changed during construction. Prospective purchasers should not rely on this information but must get their solicitor to check the plans and specification attached to their contract. Not to scale.




 
Huller and Cheese
 
Generator
Savills
T: 0117 910 0360
www.generatorgroup.co.uk