Huller and Cheese

< Return to Apartments list

The Cheese Factory : Fifth FLOOR PENTHOUSE


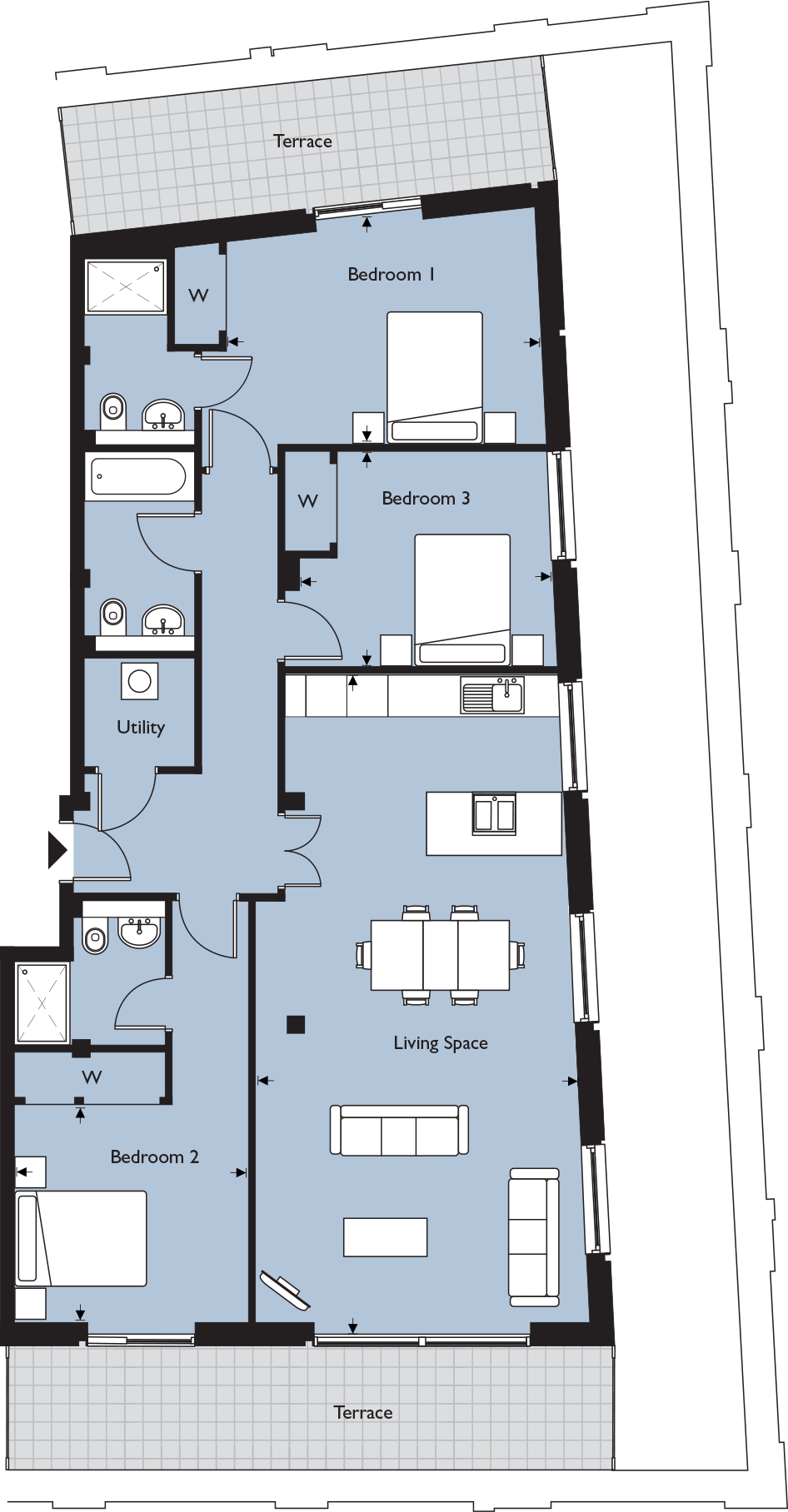
PENTHOUSE 45 - Type : Three bedroom, triple aspect penthouse with terraces

FLOOR PLANS

Apartment 45

PLOT LOCATIONS

ELEVATION


Apartment 45

SITEPLAN


Apartment 45

DIMENSIONS


Living Space

9.61m × 4.66m
31’ 6” × 15’ 3”

Bedroom 1

3.34m × 4.56m
10’ 11” × 14’ 11”

Bedroom 2

3.21m × 3.38m
10'6” × 11’ 1”

Bedroom 3

2.95m × 3.11m
9’ 8” × 10’ 2”

Total Size

116.29 m2
1252 sq.ft.

dimensions
 Room dimensions taken from this point
boiler
 Boiler Cupboard

S
 Store / Washer/dryer
W
 Wardrobe

iron
 Cast iron columns
concrete
 Concrete columns

These preliminary plans are intended only as a guide and may have changed during construction. Prospective purchasers should not rely on this information but must get their solicitor to check the plans and specification attached to their contract. Not to scale.




 
Huller and Cheese
 
Generator
Savills
T: 0117 910 0360
www.generatorgroup.co.uk